Составление планировки коммерческих помещений
Кое-что еще
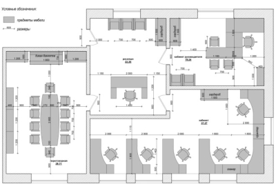
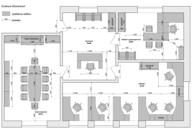
Сделать коммерческое помещение комфортным и удобным для посетителей сложнее всего. Я сделаю планировку офиса согласно вашим требованиям.
Благодаря этому я могу решать любые проблемы в помещении, которые возникают у клиентов и сотрудников. Планирую планировку таким образом, чтобы в последствии на ней можно было создать классный дизайн для вашего бизнеса.
Планировка – это основа, а каждый объект требует индивидуального подхода. Окажите помощь в работе вашего бизнеса, чтобы ваши бизнес процессы работали лучше и эффективнее. При проверке, клиенты благодарят и отмечают улучшение атмосферы в коллективе после произведенных изменений.
Воспользовавшись моими услугами, Вы поймете, что любое помещение можно сделать комфортным. Этот момент оценят не только сотрудники, но и посетители, которым обязательно захочется тужа же вернуться.
Можно ли получить проект большой площадь?
Площадь выбирается в разных гигсах. При необходимости также можно связаться со мной, чтобы обсудить те или иные детали.
Вы работаете со всеми инженерными системами?
Да, я занимаюсь проектированием всех прокладываемых инженерных систем.

Спасибо. Хорошая работа. Учтены все пожелания. Рекомендую.

Остались очень приятные впечатления о совместной работе.Рекомендую.

Как всегда всё чётко и быстро сделано. Буду обращаться еще)

Спасибо большое за качественно выполненную работу!

Спасибо за работу, все выполнено хорошо, всем доволен!

Продавец всегда отвечает на все вопросы,делает корректировки ,если они нужны и в общем хорошо все делает!

Очень благодарен создателю,работа была выполнена на очень достойном уровне,но больше всего приятна ответственность с которой специалист выполнял заказ.

Большое спасибо за работу, все быстро и качественно.

Работой доволен, не первый раз заказываю у этого исполнителя, буду заказывать еще.

Всё отлично! Работа выполнена раньше срока. Будем обращаться ещё!
Посмотрите другие, похожие на этот гиг услуги
