Детальная планировка или перепланировка целого дома, городской квартиры или отдельной комнаты
Действия
Не знаете, как распланировать свободное пространство? Я создам для вас наилучшее планировочное решение, учитывая ваши пожелания.
В данный момент предлагаю Вам разработку планировки для дома и квартиры. Обращаюсь с работой очень ответственно! С вниманием к деталям и, конечно же, к вашим пожеланиям.
В задание входит:
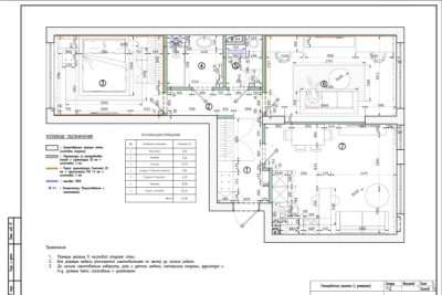
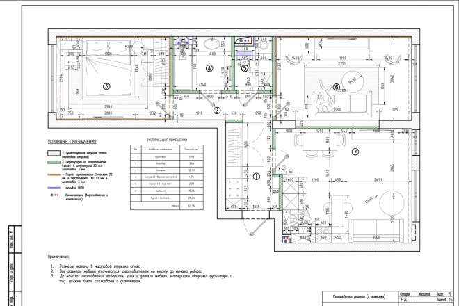
✅ 3 варианта планировки с расстановкой мебели и сантехники (помещение площадью до 10 кв. м).
✅Изменение первоначального ТЗ;
✅ Итоговый вариант документа в pdf. Если нужен исходник в dwg или DivX, можно заказать дополнительную опцию.
Планировка - главный элемент пространства для жизни. Ее проработка дает возможность по-новому взглянуть на квартиру или дом, найдя в нем свободное местечко для всего, что угодно.
Обращаясь ко мне, Вы получите профессиональный проект, который без правок и дополнительных расчетов можно передавать в работу бригаде! Это главный момент, о котором часто забывают неопытные проектировщики.
Можно ли получить проект большой площадь?
Площадь выбирается в разных гигсах. При необходимости также можно связаться со мной, чтобы обсудить те или иные детали.
Вы работаете со всеми инженерными системами?
Да, я занимаюсь проектированием всех прокладываемых инженерных систем.
Достойно! Все правки с учетом пожеланий сделаны в рамках заказа, все ровно!
Всё прекрасно, воплощена моя задумка чётко и быстро. Работой доволен, советую)!
Работа выполнена даже лучше чем было заявлено, сотрудничаю не в первый раз и буду обращаться снова. Спасибо.
Исполнитель взяв заявку в работу дал обязательства исполнить его в указанный срок, который просрочил. В последствии такого как сбросил последний итоговый материал, мы даже и не думали про сроки и не сожалеем.
Работа выполнена на высшем уровне. Очень терпеливый, особенно когда заказчик не знает что хочет, отвечает оперативно.
Буду снова обращаться, работа великолепная, сроки в норме, только коммуникация с исполнителем проблемотичная.
Спасибо за проделанную работу! Нам необходимо было внести доп.корректировки, исполнитель без проблем, быстро среагировал и внес их. Сотрудничество понравилось.
Заказ исполнен, жалоб по объему оказанных услуг нет. Были периоды споров, но мы договорились.
Выполнена задача быстро и именно в таком виде, в котором ожидали.
Спасибо! Работаем далеко не в первый раз. Всегда профессионально, терпеливо, отзывчиво, доводить работу до конца. Будем работать еще.
- Цена
- 500,00 ₽
- Срок
- 1 день
- Цена
- 1.500,00 ₽
- Срок
- 1 день
- Цена
- 11.000,00 ₽
- Срок
- 3 дня
- Цена
- 500,00 ₽
- Срок
- 1 день
- Цена
- 17.000,00 ₽
- Срок
- 2 недели
- Цена
- 20.000,00 ₽
- Срок
- 1 неделя