Экспресс планировка квартиры
Кое-что еще
Здравствуйте!
Имею большой опыт работы с планировками жилой и нежилой недвижимости.
Выполню планировочное решение для вашей квартиры, быстро и профессионально.
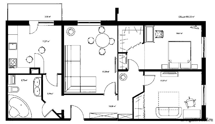
Итог работы: обмерочный план + 2 варианта планировочного решения вашей квартиры с расстановкой мебели (мебель с размерами), при необходимости вы сможете в понравившемся варианте заказать план монтажа, демонтажа, план электрики и потолков с освещением, это вам поможет быстро приступить к реализации ваших планов.
Сделаю планировку в виде файла pdf.
Нужно для заказа:
От вас предварительно необходимо предоставить техническое задание с вашими пожеланиями:
- обмерочный план или план БТИ (все размеры разборчивы), указать расположение кухни, с/у и коридора от застройщика.
- перечень помещений, которые хотите иметь в итоге в планировке.
- перечень мебели и оборудования, по каждому помещению.
Можете писать текст в любом виде, а также можете пользоваться прикрепленным файлом.
Сможете сделать заказ по квартире со свободной планировкой?
Да, Если вы знаете где и какие стены будете ставить и будут ли они запланированы.
Как составить тз правильно?
А тут нет такого, что правильно или нет, главное, чтобы в нем было прописано детальное ваше пожелание.
Нужно ли делать план перед началом ремонта?
Это и есть самое удачное время для этого.

Огромное спасибо за работу и рекомендации. Оперативно и профессионально. Рекомендую.

Быстро, чётко, даже раньше срока и больше заказанного, профессионально выполнена работа.

Заказ выполнен в полном объеме,пока все хорошо,мы довольны! Спасибо большое.

Всё прошло очень быстро! Продавец большой молодец, если собираетесь что-то покупать, покупайте только у этого продавца! РЕКОМЕНДУЮ!

Заказывал услугу впервые у этого продавца. Результатом доволен.👍👍

Профессиональная работа! Выполнено в срок всё как и договаривались!

Уже не в первый раз пользуемся услугами! Быстро и качественно.

Отличная работа. Качественно и быстро. Рекомендую!

Как всегда доволен выполнением работы, уже постоянный клиент)

Спасибо, работа выполнена качественно и в срок. Правки выполнены оперативно.
Посмотрите другие, похожие на этот гиг услуги
