Выполню планировку и дизайн квартиры
Кое-что еще
Создам качественные чертежи вашего помещения с учетом ваших пожеланий. Задержка до 7 дней в зависимости от объема работ.
Что вы получите, работая со мной?
1. Качественные чертежи вашего помещения.
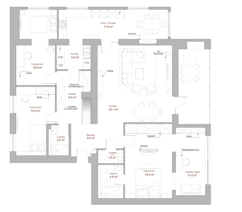
1.0 План измерений
1.1 Планировка — расстановка мебели
1.2 Дизайн напольных покрытий - Сервис
1.3 План потолка - Обслуживание
1.4 Схема подключения - Обслуживание
1.5 Схема подключения - Потолочное освещение - Обслуживание
1.6 Чертеж влажных помещений (сан.узел, кухня) - Сервис
1.7 Обустройство стен – Обслуживание
1.8 План раскладки стен C/U с количеством плиток
(керамогранит) - Сервис
1.9 Чертежи дизайнерской мебели - Сервис
1.10 Визуализация спроектированной мебели - Услуга
2. Работа выполнена в кратчайшие сроки, согласно объему работ.
3. Возмещение в случае невыполнения работы.
Важно:
Перед началом проекта необходимо обсудить и согласовать техническое задание, включая детали проекта и предпочтения клиента.
сколько времени потребуется на выполнение задания?
5 дней на выполнение
Что необходимо перед началом сотрудничества?
необходимо обсудить и согласовать техническое задание, включая детали проекта и предпочтения заказчика.

Очень понравилась работа. Быстро, качественно, все пожелания учитаны и результат оправдал все ожидания. Большое спасибо!

Все сделано на высшем уровне, все пожелания были учтены, очень доволен проделанной работой!

Отличный мастер своего дела . Работа выполнена на без замечаний😎

Лучший, сделал все быстро и так как нужно, вообщем и целом благодарю.

Все четко и быстро, заказываю не первый раз. Очень рекомендую к сотрудничеству!

Спасибо за работу, все выполнено на высшем уровне, еще и быстро. Доработки- без проблем. Рекомендуем, однозначно, 5 баллов!)

Среди огромного числа исполнителей, кому я написал - Этот был тем кого я выбрал из-за быстрой реакции и готовности приступить сразу к выполнению! То что заказал получил, чем весьма доволен) Обязательно обращусь ещё)

Профессионально, качественно, как всегда раньше срока

Не первый раз обращаюсь к этому исполнителю. Всегда делает все четко и оперативно. Спасибо!

Работу выполнил быстро и качественно. Понравился подход к выполнению задания. Большое спасибо.
Посмотрите другие, похожие на этот гиг услуги