
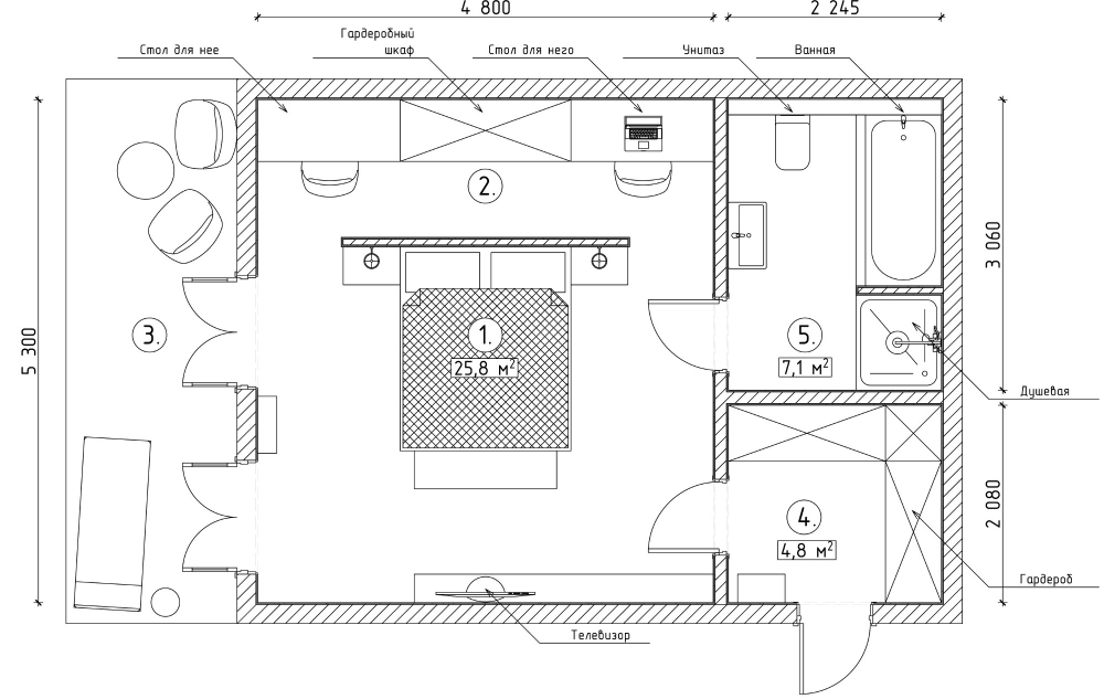
Проект-план квартиры

Здравствуйте! Я архитектор и дизайнер, буду рад сотрудничеству, особенно долгосрочному, обращайтесь сделаю все классно и под ключ! Выполняю все быстро, качественно, всегда уточняю и согласовываю, если тз не полное, то обязательно переспрошу. Работаю до результата, который будет радовать заказчика. Имею большой опыт проектирования полного цикла – от подачи концепции, до реализации интерьерных и архитектурных, ландшафтных и графических решений. Глубокое знание специализированных программ по профилю. География моих работ по всему миру, постоянно сотрудничаю и выполняю работы по всей территории РФ, ближнего и дальнего Зарубежья. Работаю (проектирую) на нескольких языках. Всегда в курсе всех трендов. С моими работами по архитектуре и дизайну частично можете ознакомится в моем портфолио. Рекомендую вам обязательно предварительно писать мне сообщения перед тем как выставить заказ, спасибо за понимание.